Cultuurhistorische Woonboerderij

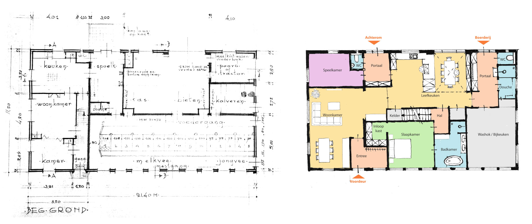
Deze langgevelboerderij uit de jaren ’50 is aangemerkt met cultuurhistorische waarde. Het behoud van het originele karakater en aanzichten was dan ook een vereiste in dit project. De baander die van origine diende als inrijdeur voor het binnenrijden van de oogst is met een moderne inslag in stand gebleven. Deze is nu door middel van een grote pui direct gekoppeld aan de nieuwe binnentuin en zorgt voor een vloed aan daglicht en ruimtelijkheid in de nieuwe ruime leefkeuken en vide ter plaatse van het voormalige stalgedeelte. De eiken spanten komen door de gehele boerderij terug en brengen het landelijke gevoel naar binnen.